DONJI GRAD, PROSTRAN 2-SOBAN STAN S GPM***BEZ PROVIZIJE!!!*** Donji grad lok., Donji grad, Grad Zagreb

1.300€
SKU: 1783J
Vrsta nekretnine: Stanovi najam
Veličina (M 2)
78
Sobe
2
Kupaonice
1
Spavaće sobe
1

Prostor

  • Godina izgradnje: 2009
  • Kat: 1
  • Orijentacija: Sjever
  • Energetski razred: B

Sadržaji

  • Etažno plinsko centralno
  • Garažno parkirno mjesto
  • Gradska kanalizacija
  • Gradski plin
  • Gradski vodovod
  • Klimatizacija
  • Lift
  • Portafon
  • Protuprovalna vrata
  • Spremište
  • Video nadzor

Opis

Za sve informacije o ovoj nekretnini kontaktirajte direktno agencijskog predstavnika:
JELENA SMUĐ, mob: 092 5019991

*** BEZ PROVIZIJE ZA NAJMOPRIMCA!!! ***

ATRAKTIVAN STAN S DVA GARAŽNA PARKIRNA MJESTA NA TOP LOKACIJI, SPREMAN ZA USELJENJE!!!

Daje se u najam moderno namješten i opremljen komforan 2-soban stan površine 78m2 na 1. katu kvalitetne stambene zgrade novije gradnje, sa spremištem i dva garažna parkirna mjesta (e-charger) u Ulici Crvenog križa.

TOP lokacija: 10 min hoda do centra grada kao i Glavnog kolodvora, blizina poslovne zone na Radničkoj cesti.

Stan je potpuno uređen i kvalitetno opremljen. Pri uređenju su korišteni vrhunski materijali i namještaj. Opremljen je kvalitetnim kuhinjskim aparatima, protuprovalnim vratima, ugrađena je klima, poseban sustav za pročišćavanje vode, video nadzor cijele zgrade, vanjska aluminijska stolarija. Sva brojila su odvojena šta osigurava plaćanje računa prema stvarnoj potrošnji.

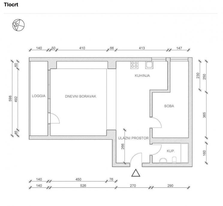
Stan ima odličan raspored (tlocrt se nalazi u privitku), a sastoji se od: ulaznog prostora, prostranog open space dnevnog boravka s radnim, sjedećim i blagovaonskim dijelom i kuhinjom (45m2), zatvorene loggie, spavaće sobe i kupaonice.

Stanu također pripada spremište i garažno parkirno mjesto na etaži -1 s ugrađenim punjačem za električni automobil s brojilom i zakupljenom strujom od 5 kW).

MIKROLOKACIJA: popularna lokacija, neposredna blizina tramvaja, škole, vrtića! Blizina centra grada, Branimirove tržnice, Tvornice kulture, Krešimirca, poslovne zone Radnička…

IDEALAN STAN ZA MODERNU OBITELJ ILI POSLOVNOG ČOVJEKA, SPREMAN ZA USELJENJE !!!

Uvjeti: Ugovor o najmu potpisuje se na godinu dana, polog u visini jednog mjesečnog najma.

 

Za sve ostale informacije kontaktirajte nas s povjerenjem!

Agencija MEDIAR NEKRETNINE kao ovlašteni posrednik u prometu nekretnina i potpisnik Kodeksa etike u poslovanju nekretnina, vodi Vas stručno i odgovorno kroz cijeli proces.

 

Attachments

Tlocrt

Kontaktiraj agenta